Volksschule Flattendorf I Zu- und Umbau

Projekt

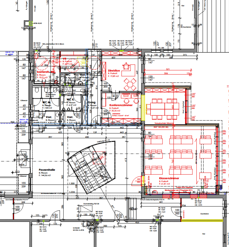
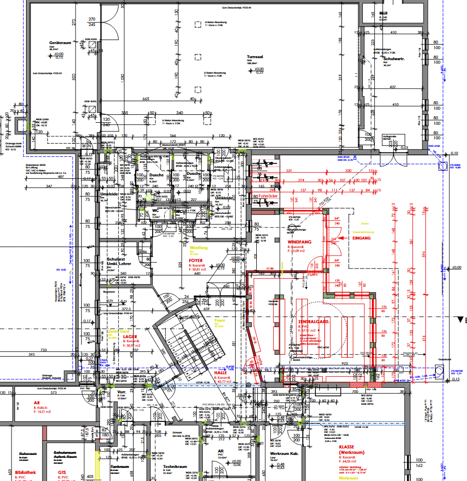
Umbau und Zubau bei bestehender Volksschule mit:

Zubau Innenhof

Umbau Direktion und Konferenzzimmer

Zubau neuer Klassenraum

neue Garderoben und Windfang

Errichtung eines barrierefreien WCs

Löffelsteinwand mit Umzäunung

Foto nach Umbau

Schnitt

Ansicht