Projekt
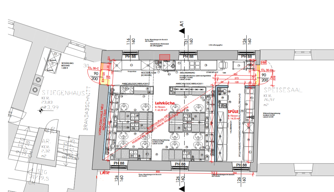
Innenumbau der Lehrküche im Obergeschoß
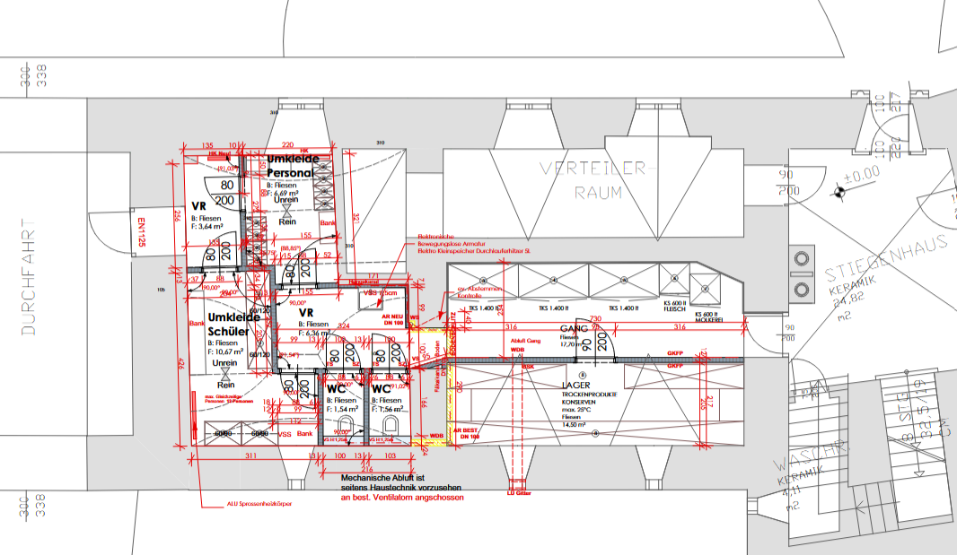
Neue Umkleiden im Erdgeschoß
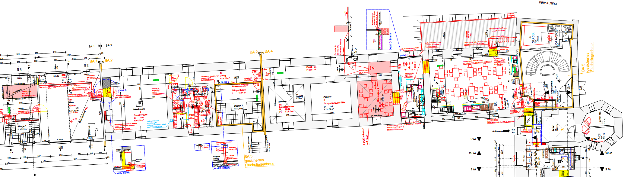
Umbau Schulküche EG und Nutzungsänderung im Bestand und angrenzenden Räumen des Chorherren Stiftes Vorau
Umbau Klassenraum in Speisesaal
Bestehende Durchfahrt in eine Lehrbar umfunktioniert
Bestandsfoto
Ausschnitt Grundriss EG Garderoben neu
Ausschnitt Grundriss OG Lehrküche neu
2018
Planung
140m²
Fläche Umbau
2022
Fertigstellung








