Einfamilienhaus C.

Projekt

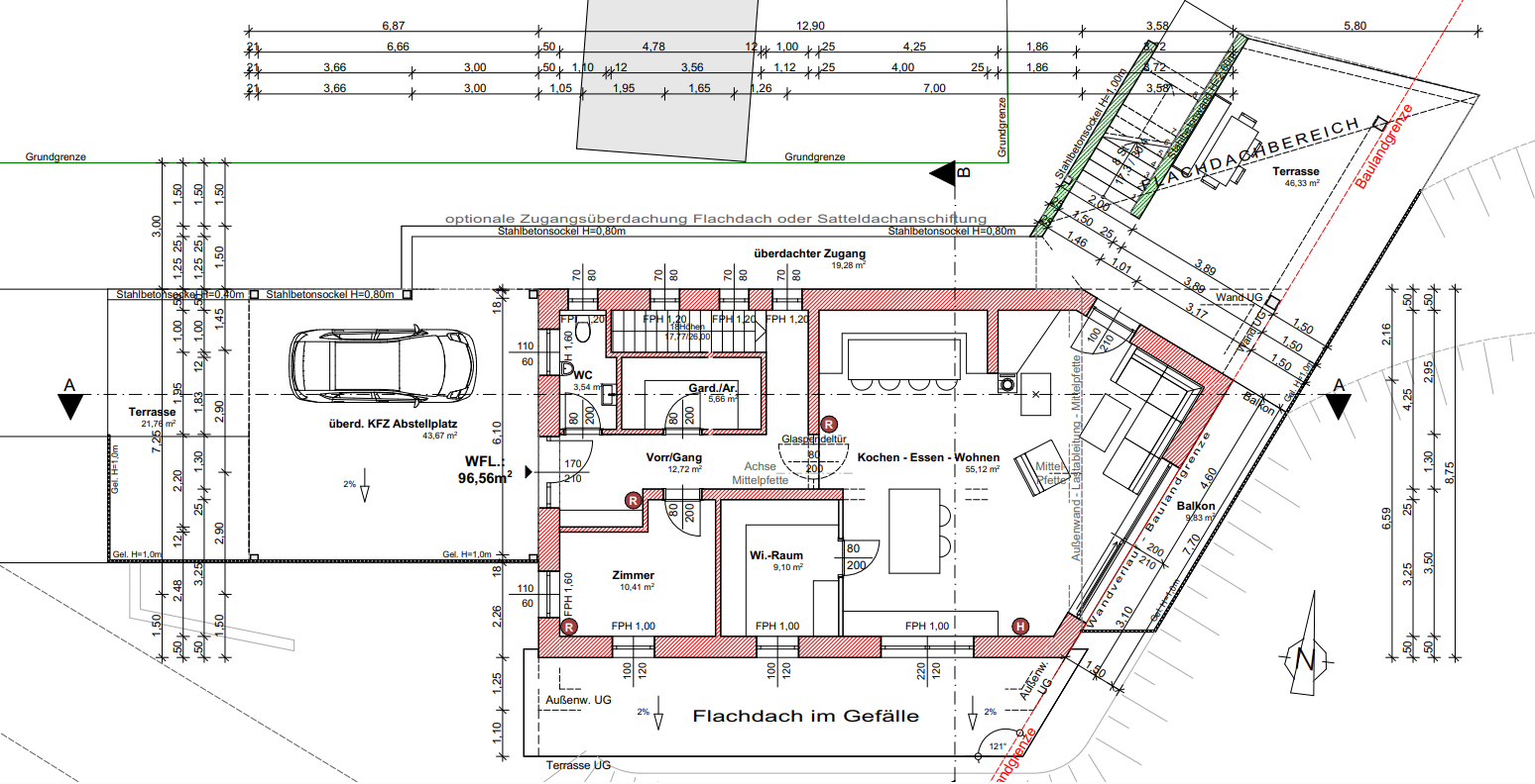
Planung eines Einfamilienwohnhauses mit Garage, angeschlossenem Müllraum, überdachtem KFZ-Abstellplatz und Geländeveränderungen.

3d-Darstellung

Planausschnitte

Grundriss EG

Grundriss OG