Einfamilienhaus A.

Projekt

Errichtung eines 2-geschoßigen Einfamilienwohnhaus mit Garage, Carport, Pool, Terrassen und Balkone, Photovoltaik, Einfriedung sowie Geländeveränderungen.

3d-Ansicht

Video

Planausschnitte

Ansicht Ost

Ansicht West

Schnitt A

Schnitt B

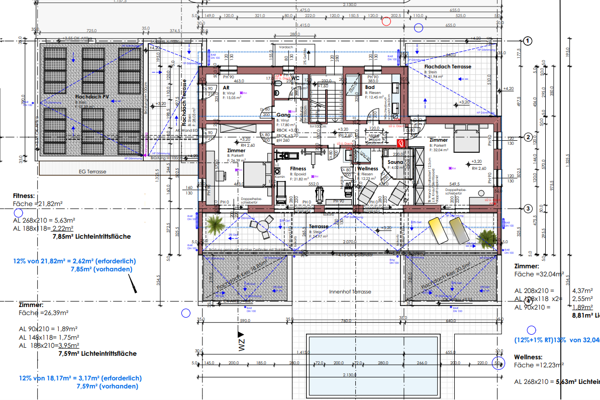
Grundriss OG